Compact Living, Big Intentions

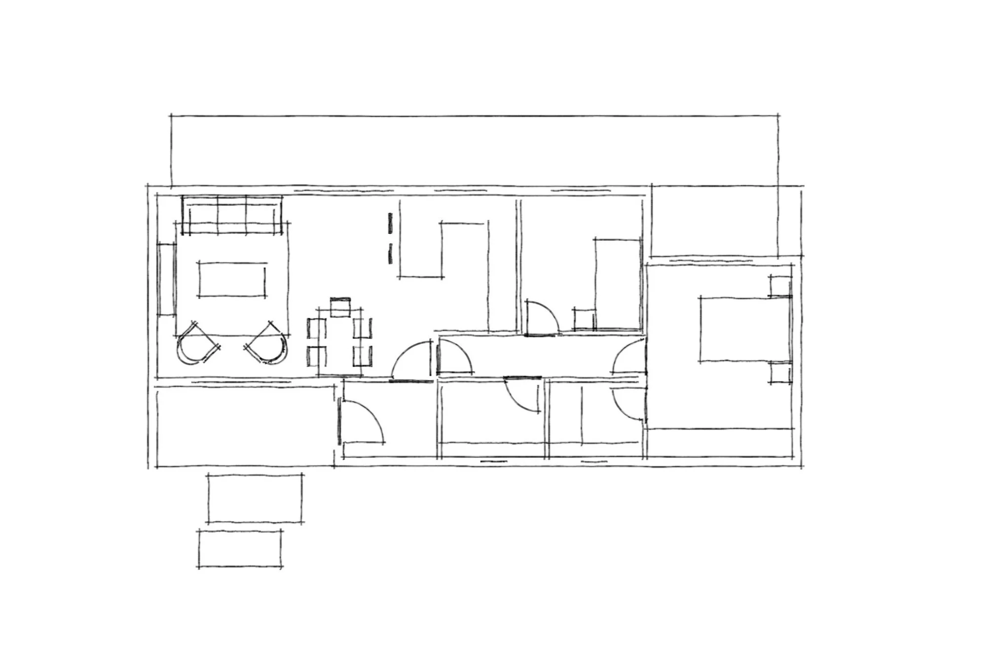
This project proposes a single-storey home designed to help a young couple take their first step onto the property ladder. Drawing inspiration from the structural form of a large static caravan, the design offers a cost-effective and efficient approach to rural living. Set within a generous plot, the scheme includes thoughtful landscaping and the creation of a biodiverse garden, enhancing both lifestyle and ecology. Currently in the early design stage and submitted for planning, this project is a testament to how humble forms can house bold ambitions.

Previous
Previous

Cubs Coffee, Cornwall

Next
Next

Wingshed, Cornwall